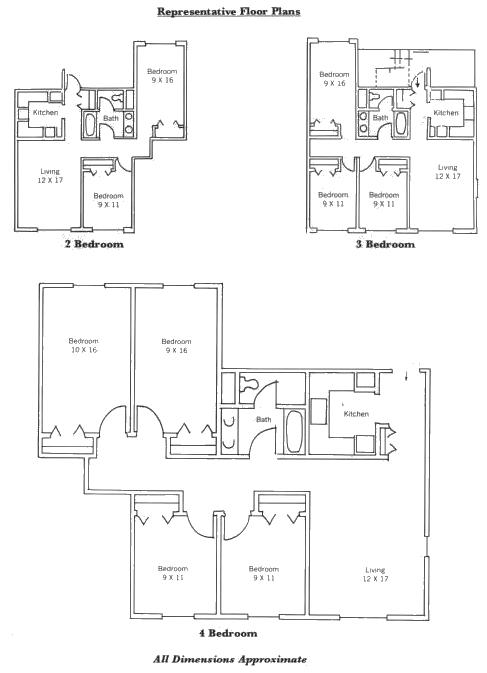
Floor Plans of 122-154 Valentine Place


Back to listing.

Foyer | Map | Listings By Size | Unsorted Listings | Info Form