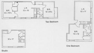
Floor Plans of 113-115 Valentine Place


Back to listing.

Foyer | Map | Listings By Size | Unsorted Listings | Info Form