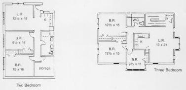
Floor Plans of College Park Apartments


Back to listing.

Foyer | Map | Listings By Size | Unsorted Listings | Info Form